Hutto, Williamson County, Texas, 78634, United States
Welcome to a land of unbounded potential, strategically positioned in the Georgetown Extraterritorial Jurisdiction (ETJ), where the freedom of no zoning meets the buzz of a rapidly expanding industrial area. Presenting a residential structure reimagined for commercial brilliance, this property stands as a beacon of opportunity for the commercial or industrial end-user.
Located a mere 5 miles from the vibrant heartbeat of Texas State University, Austin Community College (ACC), Ascension Seton Hospital, and nestled amidst flourishing neighborhoods like Teravista, Vizcaya and Paloma Lake, this property is the gateway to limitless commercial possibilities.
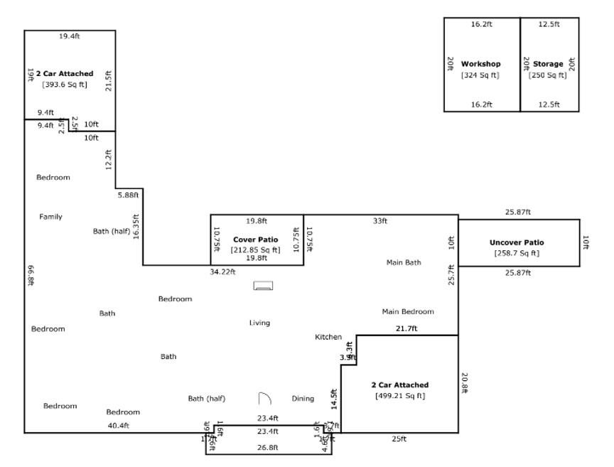
Our facility offers a comprehensive conversion with 7 rooms and 5 baths, complemented by two lounges, a break room, a practical kitchen, and a work shed equipped with 30- and 50-amp outlets.
Potential uses for this property include, but are not limited to:
* Office building with yard space
* Auto Sales (can support multiple small dealers)
* Auto workshop
* Tow yard
* Landscaping or granite business
* Assisted living or hospice care facility
* Neighborhood bar and lounge with pool and patio
The future land use map designates this area as an “Employment Center,” earmarking it for commercial or industrial use.
Utility services include water from Jonah Water SUD, an onsite septic system, and electric service by Oncore. The property is also equipped with industrial-grade solar panels. There is a conceptual plan for sewer service expansion by the City of Round Rock, which should be verified by the buyer.
The property’s designation under the “Employment Center” in the future land use map solidifies its destiny as a hub for commercial or industrial innovation.
This is a common note that can be displayed on all properties but controlled from one simple option.
A walk-in closet and a bathroom with a vanity, toilet, and walk-in shower are also included in the attached bedroom.
Immerse yourself in the captivating ambiance of our properties. Book a personalized tour to explore the exquisite beauty and unique features of our property.
Our knowledgeable staff will guide you through the property, answering any questions you may have.
$2,500 Monthly
View Details$850,000
View DetailsBroker Firm Name
Veridian, LLC DBA Moteeva | (512) 686-6788
Designated Broker of Firm
Mo Sheikh
© Moteeva℠ 2025.
All information is deemed reliable but not guaranteed and should be independently reviewed and verified.
Owning a home is a keystone of wealth… both financial affluence and emotional security.
Suze Orman